noma: designing your future
HeritagePROJECTS

We have extensive experience of working with other conservation professionals to restore, refurbish and maintain historic buildings. We have long experience of working in the Conservation sector, whether on projects in Conservation areas, adjacent to Listed Buildings (Grades I and II* especially), in Areas of Outstanding Natural Beauty, or more specifically working on Listed Buildings and making Listed Building Applications, as well as preparing Heritage Statements.

  • St Paul’s Church
  • St Michael and All Angels
  • Grove House
  • Charles Parade
  • Redcliffe Street
  • Lynwood House
  • Portland Square
  • St James Mangotsfield
  • St Mary the Virgin
  • bb
  • bb
  • bb

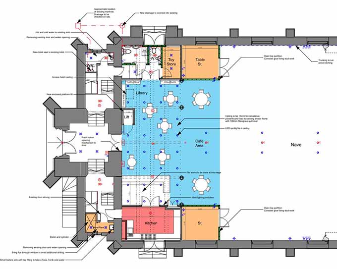
St Paul’s Church

Southville, Bristol

St Pauls PCC

A series of projects to upgrade the appearance of the church, improve the facilities and make it feel more welcoming to visitors, including
– improvements to the entrance doors and lobby
– improved accessibility
– modernisation of the cafe area